中古マンション プラセシオン昭和吹上
所在地
名古屋市昭和区曙町2丁目
3,680万円
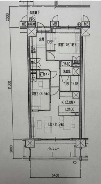
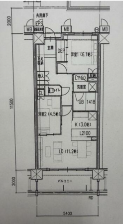
61.18m²
2LDK
吹上公園【徒歩5分】
マックスバリュエクスプレス北山店【徒歩10分】
月々の支払例
【※ボーナス払い無し】
【※ボーナス払い無し】
※大垣共立銀行/頭金0円、返済期間40年、金利1.025%変動金利変動(2026年04月)の場合
※金利は毎月見直されます。別途、融資手数料、その他諸費用がかかります。
※審査により金利は変わる可能性があります。
物件概要
- 交通
-
桜通線 吹上駅 まで 徒歩7分
鶴舞線 御器所駅 まで 徒歩7分
- 専有面積
- 壁芯 61.18㎡
- バルコニー
-
10.80㎡ (南側)
面積不明 - 所在階/階数
- 8階/10階
- 築年数
-
2017年
(平成29)
12月
築8年 - 建ぺい率
- 容積率
- 土地権利
- 所有権
- 構造および階数
- RC(鉄筋コンクリート) 造 地上10階建
- 総戸数
- 小学校区
- 吹上 ( 478m )
- 中学校区
- 北山 ( 1380m )
- 地目
- 現況
- 居住中
- 引渡時期
- 相談
- 駐車場
- 無
- 駐車場月額
- 管理形態
- 全部委託
- 管理方式
- 管理人巡回
- 管理会社
- プラセシオン昭和吹上管理
- 管理費
- 9,180円
- 修繕積立費
- 6,200円
- 上水道
- 公共
- 下水道
- 公共
- ガス
- 都市ガス
- 都市計画
- 用途地域
- 1種住居
- 設備・条件
- モニタ付インターホン、オートロック、エレベーター
- 備考
- 取引態様
- 仲介

